26 Barrallier Street, GRIFFITH, ACT 2603 房源编号:46326
| 价格: | 约¥170万 |
|---|
物业类型 |
不详 |
|---|---|
物业状态 |
新建 |
建筑面积 |
100平方米 |
占地面积 |
187平方米 |
卧室数量 |
2 |
房龄 |
不详 |
朝向 |
不详 |
墨尔本只要35万澳元的联排别墅,走路到火车站、购物中心!
今天要给大家推荐的是位于墨尔本西南区Melton South的高级联排别墅小区,Melis,售价仅35万澳元一套!项目位于墨尔本西南区的新贵卫星城,Melton市。和大多数西南区不同,Melton是一个发展较为成熟的区域,有成熟的配套设施,包括大型购物中心、学校、火车站等等,距离CBD约35公里。
Melton市位于墨尔本西部,是澳大利亚发展最快的地区之一。2003年以来,Melton市的人口翻了一倍以上,增长率高居维多利亚州之首。
Melton市有著名的Woodgrove购物中心,在2012年投入8800万澳元进行扩建,目前该购物中心的面积为之前的二倍,周围还新建了Melton 图书馆、Bunnings建材连锁店以及学校中心,早已投入使用。
这些新建的设施带来了巨大的人流量,这点是该区一直乐于称道的。
这个购物中心距离今天介绍的Melis项目,2.5公里。购物中心内有Woolworth、Aldi、Coles这澳洲三大超市巨头,更有Kmart百货公司、各大银行以及电影院,非常便利。购物中心边上还有Red Rooster、麦当劳、Hungry Jacks等快餐连锁店。
除了大型购物中心,今天介绍的Melis项目距离火车站仅仅1.5公里,走路就可以到达。周边还有多条公交车线路。火车站附近有不少小型餐馆,比如Oh My Greens咖啡馆、Bottlemart酒店、T J蓝海鱼薯店、Luv A烤肉店等等。另外,Melis小区距离Wallace Square购物小镇仅3公里。
另外,项目附近的教育资源相当丰富:
AI Iman College Campus:1 公里
Staughton College(高中):1.5公里
Melton South小学:1.9公里
Melton West 小学:2.4公里
Melton Secondary College 中学: 2公里
Melton Specialist School:2公里
Melton Central幼儿园:2.2公里
Melton World of Learning 日托中心:2.2公里
Melton 小学:3.6公里
Cobun小学:1.2公里
基本上距离Melis项目5车程内就可以到达各类学校及幼儿园。
休闲娱乐:
Blackwood Drive休闲绿地:1.3公里
Melton Waves公共泳池:2.7公里
Melton Valley高尔夫俱乐部:4.4公里
Navan Park湖畔公园:3.4公里
Melton 皇家植物园4公里
Melton Indoor Centre室内娱乐中心:1.9公里
医疗:
Melton Health Services: 2.1公里
Estia Health Melton South:1.1公里
Melton Medical Clinic诊所:2.7公里
今天给大家介绍的Melis项目周边配套非常便利,与此同时,Melis均价仅35万澳元,属于性价比超高的单层别墅小区。
Melis的开发商Senol是一家本地资深开发商,除了高密度及低密度公寓项目,中等密度的别墅小区开发以外,还涉猎了商业及工业地产开发。距今已有25年历史。
推荐:
由于澳洲位于南半球,所以朝北等于国内朝南,光线。
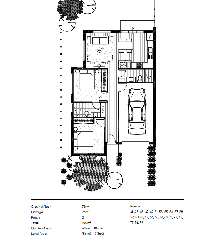
45号别墅,2房2卫1车位,室内面积73平米,车库23平米,门廊2平米,总面积100平米。花园面积74平米,占地面积187平米。$35.5万澳元。
47号别墅,2房2卫1车位,室内面积73平米,车库23平米,门廊2平米,总面积100平米。花园面积46平米,占地面积159平米。$35万澳元。












我是马克西,可以协助您办理贷款、境外汇款、日后租赁管理,全程放心可靠。
如果您有澳洲留学、移民、生活、房产方面的疑问,请随时咨询我们。
马克西的西瓜视频节目链接:https://www.ixigua.com/home/2348155989666776/
马克西的喜马拉雅音频节目链接:https://www.ximalaya.com/shangye/23723927/
| 持有费用 | 交易费用 | |||
| 物业费 | 约0-2000澳元/年 | 物业印花税 | 各州税率不同,一般3%-4.5% | |
| 市政税 | 约800-2000澳元/年 | 律师费/过户费 | 约1000-1500澳元起 | |
| 保险费 | 约300-700澳元/年 | 转让费用 | ||
| 水费 | 约150-200澳元/季度 | 中介费用 | 约为1-2.5% | |
| 中介管理费 | 约为1-2.5% | |||