美国西雅图东北第97大街 房源编号:46366
| 价格: | 约¥731万 |
|---|
物业类型 |
不详 |
|---|---|
物业状态 |
不详 |
建筑面积 |
177平方米 |
占地面积 |
200平方米 |
卧室数量 |
4 |
房龄 |
不详 |
朝向 |
不详 |
今天给大家带来的就是位于CBD隔壁的区,West Melbourne的联排别墅社区,Townhus!已经开工,预计2022年初交房,价格在151万澳元起。
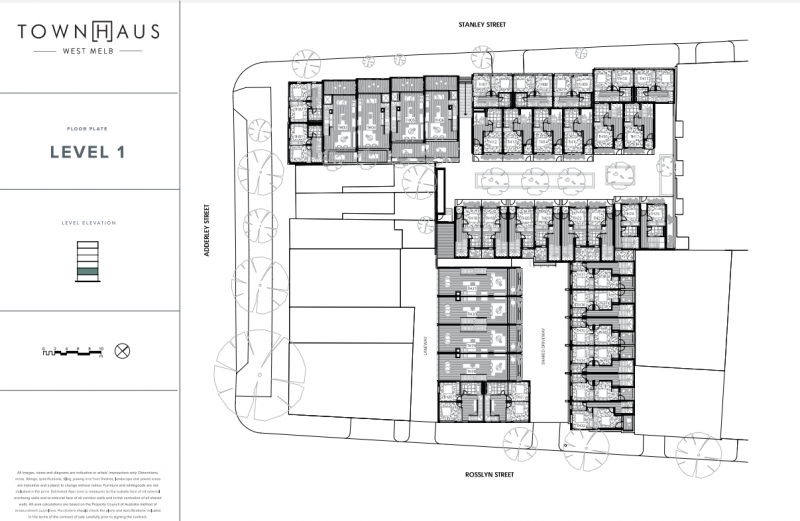
Townhaus所在的West Melbourne的 Rosslyn Street,是一处充满了艺术气息的街区,在画廊原址建设的Townhaus,充满了现代艺术和生活的气息。
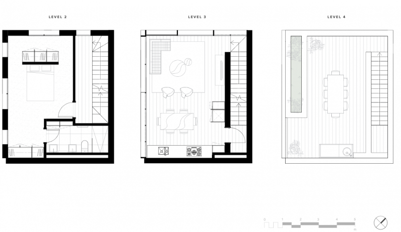
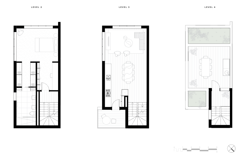
在寸土寸金的CBD旁边,Townhaus提供了一种低密度的生活方式,4层建筑和屋顶露台,为每家住户都创造了宽敞的居住和休闲空间。独享的宁静与私密、都市的繁华与便利,都在您的掌握之中。
Townhaus的室内装饰采用黑白色调,低调沉稳,富有现代艺术气息,与街区的氛围完美相称。内嵌式冰箱和Miele厨房电器,让您居家生活更加完美。
西墨尔本
Townhaus,位于墨尔本CBD西端的西墨尔本。近年来,随着墨尔本城市发展,这里正经历着史无前例的城市更新——在这片距离市中心仅咫尺之遥的城区,越来越多的住宅项目,使西墨尔本成为高素质、高收入人群喜爱的、充满了艺术和生活气息的住宅区。
得益于区域高就业率、优质教育,以及一应俱全的生活配套设施,CBD西区为寻求市中心生活方式的奋斗年轻人提供了理想居所。局域内居民平均年龄仅为33岁,52%的人口年龄在20-34岁,正是最有能力的高收入租客人群。CBD西区租赁市场非常强劲。数据显示,区域内大约58%的居民都选择租房住。
此外,West Melbourne还极为靠近墨尔本政府斥资70亿澳元打造的Arden特区,这一区域将成为另一个围绕墨尔本市中心的就业、教育和创新中心,到2051年时,这里将有34,000个就业岗位和15,000名居民。
在Townhaus周边,步行可达三个火车站:North Melbourne火车站、Southern Cross火车站和Flagstaff火车站,其中,North Melbourne火车站将接驳正在建设的新地下火车线路,可达墨尔本大学、市中心Swanston Street、Domain、South Yarra等地,Southern Cross火车站,则是墨尔本最大的交通枢纽。
从Townhaus出发,步行600米即可达墨尔本市中心免费电车区,方便住户在CBD工作、购物出行。
Townhaus对面,是正在建设的West End项目,各类商业配套设施、市政公园已经规划完毕,正在建设落地。未来,住户只要过一条马路,就可以享受日常生活所需的商业配套。
您也可以步行,穿过美丽的Flagstaff公园,到历史悠久的维多利亚女王市场购物,或者搭乘电车,到达墨尔本市中心各大商场。您也可以选择向西,到Docklands欣赏美丽的水景,观看冬日的美丽烟花,和四季的壮观落日。
Townhaus周边,分布着墨尔本的著名学府,如La Trobe University、Victoria University、Haileybury College,以及Docklands Primary School,搭乘公共交通,前往墨尔本大学和RMIT也十分便利。
具体地址:222-224 Rosslyn Street
Townhus是距离CBD最近,也是绝无仅有的大型联排别墅项目,建成之后,势必成为当地的标志性社区。这就是我们之前说的,既能享受到住别墅的生活方式,同时也能接触CBD的繁华。对于投资者来说,由于West Melbourne紧挨CBD,其租金的高昂也是距离CBD 10-20公里,但是同样价格的别墅所无法比拟的。
下面我们来看看推荐的别墅:
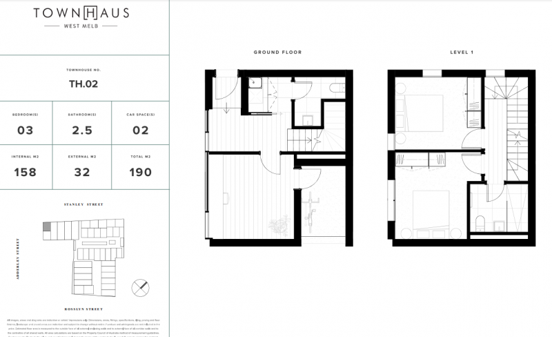
2号别墅,3房2.5卫1书房2车位,室内面积158平米,露台面积32平米,总面积190平米,$172万澳元。
32号别墅,3房2卫2车位,室内面积222平米,露台面积34平米,总面积256平米,$212.5万澳元。
12号别墅,3房3卫2车位,室内面积154平米,阳台面积23平米,总面积177平米,$150.5万澳元。
Townhaus此次全新发售8套住宅,签约后可享开发商特别提供价值$20000澳元大礼!












我是马克西,可以协助您办理贷款、境外汇款、日后租赁管理,全程放心可靠。
如果您有澳洲留学、移民、生活、房产方面的疑问,请随时咨询我们。
马克西的西瓜视频节目链接:https://www.ixigua.com/home/2348155989666776/
马克西的喜马拉雅音频节目链接:https://www.ximalaya.com/shangye/23723927/
| 持有费用 | 交易费用 | |||
| 物业费 | 约0-2000澳元/年 | 物业印花税 | 各州税率不同,一般3%-4.5% | |
| 市政税 | 约800-2000澳元/年 | 律师费/过户费 | 约1000-1500澳元起 | |
| 保险费 | 约300-700澳元/年 | 转让费用 | ||
| 水费 | 约150-200澳元/季度 | 中介费用 | 约为1-2.5% | |
| 中介管理费 | 约为1-2.5% | |||