东部CBD淡滨尼 房源编号:16054
| 价格: | 约¥298万 |
|---|
物业类型 |
不详 |
|---|---|
物业状态 |
不详 |
建筑面积 |
41平方米 |
占地面积 |
不详 |
卧室数量 |
1,2,3,4,5 |
房龄 |
不详 |
朝向 |
不详 |

2018年开盘的第一个新楼盘,预计是2018年新楼盘项目中价格低的楼盘,所以有兴趣买房的朋友尽快加我微信哦。
荟景嘉园TheTapestry总共861个单位,占地面积多达2万多平方米,由7栋15层的单位组成,户型包括有1房,2房,2+书房,3房,4房,4房双钥匙,5房双钥匙+书房,下面会详细介绍户型。
参考价格:1房59.9万起,1+书房68.3万起,2房78.8万起,3房113.5万起,4房167.1万起
项目要点:
位于新加坡配套成熟住宅社区——东部CBD淡滨尼
项目拥有超50多项公寓配套设施,长达100米的游泳池
新加坡最大的发展商之一城市发展有限公司打造项目,品质保证
著名建筑设计团队ADDP与新加坡大型承包商WOH HUP共同打造;
2018年新加坡首个大型公寓项目
大部分单位为南北朝向,户型设计方正,采光极佳,实用为主
4房和5房单位直接私人电梯入户
配备智能家居系统,引领国际家居时尚潮流
建筑设计与绿色环保相结合,荣获“绿色建筑标志白金奖”
生活便利,购物选择丰富
淡滨尼作为东部的商业中心,作为东部成熟的住宅区,大型购物商场林立,包括淡滨尼商场Tampines Mall,世纪广场Century Square,淡滨尼1号商场Tampines 1,如果需要买家具或者生活类产品,可以去宜家在新加坡的最大旗舰店,需要买电器或者电子产品时,可以选择去Courts,还有一个大型超市Giant,里面的东西品种齐全,吃喝玩乐选择丰富。

著名发展商城市发展公司打造
来聊聊项目的发展商,城市发展公司新加坡最大型的发展商之一,已经有54年项目开发折扣,开发的项目在全球26个国家97个不同地点,在新加坡参与高档住宅、中档住宅、大众化住宅,同时新加坡最大的商业地产持有者之一,旗下拥有大型商场,办公室,酒店,服务型公寓等。大型发展商打造的项目,品质保证,让您买得放心。

淡滨尼为新加坡东部美食天堂
喜欢美食的朋友,可以去Good Year海鲜村,他家的店门口经常排长队,推荐的食物包括辣椒螃蟹、娘惹式酸辣亚參鱼头、咸蛋鱼皮等。可以去淡滨尼中心Tampines Hub品尝泰国美食,我就不一一列举了。

周围学府众多
小学这块附近有名校圣希尔达小学,还有培青小学,Junyuan小学,Eastview小学等。中学包括圣希尔达中学,淡滨尼中学,Junyuan中学等。公寓附近有淡马溪理工学院(大专学府),淡滨尼初级学院(高中),还有在四美一带的新加坡科技大学STUD。国际学校有东南亚联合世界学院UWC, 从公寓只需步行就可以到达。

政府也计划将淡滨尼发展为东部区域就业中心,旨在把工作机会带到住宅区,减少上班时在交通方面花费的时间。东部商业园和工业区发展迅速,包括淡滨尼晶片园区、樟宜商业园、淡滨尼工业园、洛阳工业区、加上樟宜机场在扩建的第五搭客大厦,将为附近居民提供大量的就业机会。

每户单位都采用智能家居系统
每个单位采用智能家居系统,装有智能控制器,备有摄像功能和声控系统。包括一个大门感应器,一个智能电子锁,一个可控灯光,两个空调控制,一个智能语音助手。当您在外面时也可以知道家里的情况通过手机App, 让每位业主享受惬意现代感十足的智能家居生活,还有提供贴心的管家服务。为您生活带来便利。

公寓配套设施
公寓提供52种配套设施,包括100米长的大型游泳池,还有一个标准的50米的游泳池,网球场,健身房,小孩的探险玩耍区,小孩泳池,一个可容纳100个小孩的托儿所。
免费提供一年的巴士去淡滨尼地铁站,满足业主的交通方面需求。
小区图片大放送







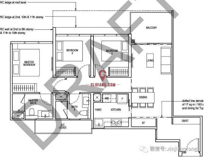
一房到四房户型图介绍:
1房,41平方米/441平方英尺,价格59.9万起

1+书房,44平方米/474平方英尺, 价格68.3万起

2房,56平方米/603平方英尺, 价格78.8万起

3房普通型,91平方米/990平方英尺, 价格113.5万起

3房豪华型,102平方米/1130平方英尺, 价格134.4万起

4房豪华型,133平方米/1432平方英尺, 价格167.1万起

若您对新加坡任何房产感兴趣,请免费咨询我们的特约房产经纪人张琼/Linda,开发商直接代理销售团队,买公寓无任何中介费用,协助客户办理买房银行贷款,买房产业托管一条龙服务。
如果您喜欢这边文章,请分享在你的朋友圈或转发您需要的朋友,谢谢!
房产作者介绍张琼(Linda),新加坡最大房产经纪公司Huttons市场部高级董事,拥有丰富的房产行业经验,已入行热爱的房地产行业约8年.全心全意为客户考虑,致力于协助国人新加坡置业,秉着细心周到的服务态度,以客户利益为出发点,诚信待人。服务过数百位中高档客户,广受客户们好评。包括企业家,企业高管,中小型公司老板,新移民,房地产发展商老板等等。
一个电话过来就了解全岛各地段的项目,总有一款适合您!不跟买家收取中介费,专车接送看房,公司代理全岛各地项目
为什么选择我?本人对市场项目很熟悉,可以更加专业帮您找到适合的单位,节省你看房所需花的时间,可以带您看全岛各地的项目,只选适合您的好项目.
协助您办理银行贷款(外国人可贷款),房屋推荐,律师咨询等,值得客户信赖的房屋经纪人。
总以专业的眼光推荐适合客户需求的房屋项目,始终客户优先.
欢迎需要买房或者卖房的朋友添加我的微信号(扫描以下二维码)

| 交易费用 | 贷款费用 | |||
| 印花税 | 外国人20% ,当地3% | 首付 | 30%以上 | |
| 律师费 | 2000-3000新币 | 贷款费用 | 根据实际情况而定 | |
| 转让费用 | 持有费用 | |||
| 所得税 | 所得税 其中第一年税率:16% 第二年:12% 第三年:8% 购买超过3年免征 |
物业费 | 一般100-300新币 | |
| 地税 | 年租金4%或10%(非自住) | |||
| 出租税 | 2万新币/年起征 | |||