118 Tampines Street 11 Singapore 房源编号:47702
| 价格: | 约¥440万 |
|---|
物业类型 |
不详 |
|---|---|
物业状态 |
不详 |
建筑面积 |
不详 |
占地面积 |
61007平方米 |
卧室数量 |
1-5 |
房龄 |
不详 |
朝向 |
不详 |
新加坡地区分布

项目简介
楼盘名称: Treasure @ Tampines 聚宝园
发展商 : Sim Lian Holdings Limited Ltd 森联集团
产权期限: 99年地契
单位数量: 2203
项目总面积 : 61,007平方米
所在位置: 新加坡东部, 第18郵區, 淡賓尼, 巴西立
项目详述
Treasure @ Tampines 聚宝园 位于新加坡核心地带第18邮区淡滨尼,拥有99年产权,由29栋12层楼高的住宅建筑组成,总共有2203个独立单位。从一卧至五卧户型多种户型可供买家选择,平均
售价在每平方英尺1,280新币,预计于2023年能取得临时入伙准证。
坐落于新加坡东部大城市淡滨尼, Treasure聚宝园小区面积有11个足球场大。公寓内有128个娱乐设施的设施和13个游泳池,公寓内有一个两层楼高的会所, 设有多功能厅和共同工作空间。不同于一
般公寓, 聚宝园 内的大型健身房24小 时全天候开放, 并有网球场和攀岩墙等 ,让您无时无刻, 皆可以强健身心, 放鬆心情。
聚宝园旁边就是东部闻名遐迩的Tampine Round Market and Food Center。那里有选择非常丰富的熟食摊位,还有菜市场,对于爱下厨房的人士而言非常棒。周边商场环绕,有Eastpoint Mall,
Tampines One,Tampines Mall,Century Square等等,这些商场有食阁,超市,电影院,咖啡厅,儿童游乐场,完全满足日常吃喝玩乐的需求。
从聚宝园靠近四美地铁站,淡滨尼地铁站以及淡滨尼西地铁站。小区内并有免费的小区接驳车前往淡宾尼市中心以及樟宜机场, 让大家在周末放假的时候又多了一个
好去处。
Treasure @ Tampines 聚宝园周边有完善的教育资源,一公里范围内设有7所小学,包括树仁小学、尚育小学、崇服学校、淡滨尼小学、育民小学、东景小学和俊源小学。周边学校也包括名校德明
中学、淡滨尼初级学院、淡马锡理工学院和新加坡第四所公立大学 – 新加坡科技设计大学,基本上覆盖了所有教育级别。







项目位置

楼盘亮点
1. 位于成熟市镇淡滨尼,位于两个地铁站之间淡滨尼和四美地铁站,可步行去两个地铁站, 或搭乘免费班车去淡滨尼和樟宜机场
2. 生活方便,靠近多所商城,包括淡滨尼的 Tampines1, Tampines mall, century sqaure和四美的East point.
3. 超美园景设计,高达128项设施,公寓内有 13个游泳池,一个两层楼高的会所, 当中设有多功能厅和共同工作空间,除此之外, 还有宽敞的24小 时健身房
4. 一房到五房, 多种户型选择。格局宽敞高效
户型分布与价格
| 户型 | 面积 (平方尺) | 总价 (新币 起) | 面积 (平方米) | 总价 (人民币 起) |
| 二卧室 | 581-592 | 912000 | 53-54 | 440 万 |
| 二卧室+书房 | 678 | 949000 | 62 | 458 万 |
| 二卧室 (大) | 657-678 | $945,000 | 61-62 | 456 万 |
| 三卧室 | 918-947 | $1,139,000 | 85-87 | 550 万 |
| 三卧室 (大) | 1012-1033 | $1,391,000 | 94-95 | 672 万 |
| 四卧室 | 1238-1270 | $1,615,000 | 115-117 | 780万 |
| 四卧室(大) | 1270-1367 | $1,713,000 | 117-126 | 828 万 |
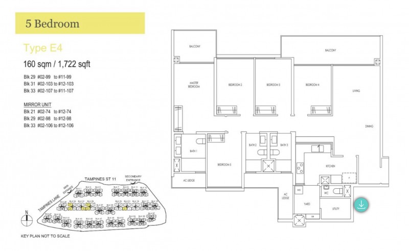
| 五卧室 | 1668-1722 | $2,025,000 | 154-164 | 978 万 |
VR 看房
两房
http://client.audax.com.sg/treasure/2bed/tour.html
三房
http://client.audax.com.sg/treasure/3bed/tour.html
四房
http://client.audax.com.sg/treasure/4bed/tour.html
五房
http://client.audax.com.sg/treasure/5bed/tour.html
户型参考 ( 欢迎谘询更多其他户型)
两房+书房
三房式
四房式
五房式

| 交易费用 | 贷款费用 | |||
| 印花税 | 外国人20% ,当地3% | 首付 | 30%以上 | |
| 律师费 | 2000-3000新币 | 贷款费用 | 根据实际情况而定 | |
| 转让费用 | 持有费用 | |||
| 所得税 | 所得税 其中第一年税率:16% 第二年:12% 第三年:8% 购买超过3年免征 |
物业费 | 一般100-300新币 | |
| 地税 | 年租金4%或10%(非自住) | |||
| 出租税 | 2万新币/年起征 | |||