房源编号:48866
| 价格: | 请向中介咨询 |
|---|
物业类型 |
不详 |
|---|---|
物业状态 |
新建 |
建筑面积 |
不详 |
占地面积 |
不详 |
卧室数量 |
不详 |
房龄 |
不详 |
朝向 |
不详 |

项目要点:
(1) 地处中央核心区,尊贵第10邮区,永久地契
(2) 发展商给出极好有吸引力的入场价,单价只需$2215/平方英尺起
(3) 背靠新加坡最尊贵身份象征“优质洋房区”,优质洋房区屋主是企业家、商人、科技大佬、有声望的家族等,肯定妥妥的
(4) 有3栋每层只有4个单位,每一层专属种花槽让住户接近大自然
(5) 阳台周围被郁郁葱葱的植物环绕,仿佛住“植物园”般的体验
(6) 特别有市场上大户型,适合喜欢大户型买主们,豪华3卧室116-128平方米,豪华4卧室最大高达191平方米(限量5套),豪华5卧室191-211平方米
(7) 网红小学雅德小学/Alexandra Primary School在一公里内
(8) 高端品牌电器、高达3米的层高,

项目介绍
卓苑地处中央核心区,第10邮区,周围是优质洋房区GCB,容积率1.4,属于低密度住宅区,周围环境清幽,市场上永久地契,占地面积8656.9平方米,在市区属于占地面积大的地块,由6栋5层建筑组成,总共130套,预计交房2026年。
户型分布
从下面制作的图表可以看出,项目整体户型偏大,有适合刚需型买家们的户型,同时也照顾改善型、预算更宽裕的买家
大面积户型(参考3卧室-5卧室豪华型),具体可以看后面的户型介绍

有吸引力的入场价格
发展商给出超有吸引力的入场价格,只需单价$2215/平方英尺起(1平方米=10.76平方英尺),会不会幸福来得太突然,以第10邮区的地段,这个价格对买家实在有吸引力,可以说是整个中央核心区CCR最便宜的新盘了,有些中央周围区的项目价格相当,有兴趣朋友,欢迎您添加文章尾端的微信二维码。
看最近的2块政府售地结果,位于纬壹城(One North)的士岭坡两幅地段,其中A地段竞标者为益民林发展(EL Development),售价为1246/平方英尺,B地段被鑫丰地产夺得,售价为1210/平方英尺起,预计以后开盘尺价为2200每平方英尺起,这2块地段是政府售地,属于99年地契,卓苑是第10邮区的永久地契。2020年11月在美世界地铁站的The Linq在开盘当天就售出96%,地处第21邮区,平均售价在2150-2200/英尺,和卓苑的地段不可同日而语。
下面为指导价格,VIP预售看房从10月2号开始,欢迎扫描文章尾端微信二维码提前预约看房,享受早鸟入场价
1卧室119.4万起,2卧室161.1万起,3卧室226.5万起,4卧室350.9万起,5卧室429.9万起

交通便利,商场林立


设计师打造绿意葱葱的小区,置身园林般的住户体验
(参考下面图片)










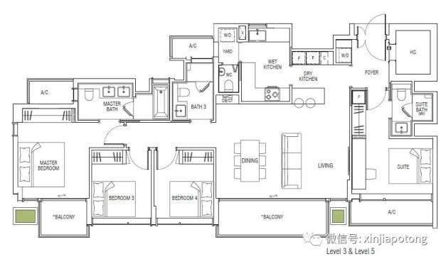
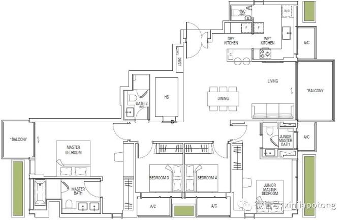
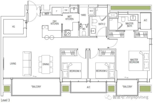
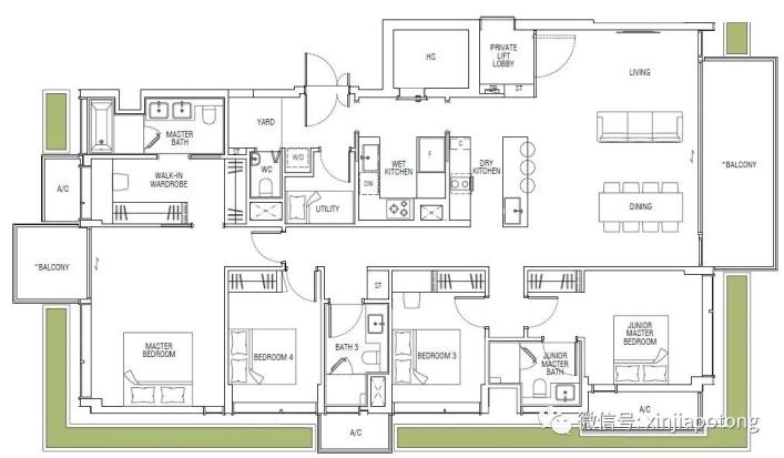
户型介绍:
一卧室,46平方米

两卧室,63-73平方米,3种款式,B3户型图

两卧室+客房,74-80平方米,4种款式

三卧室,93-95平方米,2种款式

四卧室,137-143平方米


三卧室豪华型,116-128平方米,横向大客厅配阳台

四卧室豪华型,143-180平方米,稀缺大平层

五卧室豪华型,191-211平方米,稀缺大平层



客户好评及感谢信息







| 交易费用 | 贷款费用 | |||
| 印花税 | 外国人20% ,当地3% | 首付 | 30%以上 | |
| 律师费 | 2000-3000新币 | 贷款费用 | 根据实际情况而定 | |
| 转让费用 | 持有费用 | |||
| 所得税 | 所得税 其中第一年税率:16% 第二年:12% 第三年:8% 购买超过3年免征 |
物业费 | 一般100-300新币 | |
| 地税 | 年租金4%或10%(非自住) | |||
| 出租税 | 2万新币/年起征 | |||