新加坡 房源编号:49716
| 价格: | 约¥500万 |
|---|
物业类型 |
不详 |
|---|---|
物业状态 |
不详 |
建筑面积 |
不详 |
占地面积 |
不详 |
卧室数量 |
不详 |
房龄 |
不详 |
朝向 |
不详 |

现在VIP销售预售中,到5月17号,5月21号抽签
户型非常好,普通房都有10.8平米的,喜欢大房间的朋友们,可以联系我预约看房
指导价格:
1房108.4万起,2房143万起,3房232.7万起,4房 339万起,豪华4房363.2万起

项目要点:
(1)受人欢迎的东海岸,地处尊贵的美雅路 (东海岸黄金地段)
(2)占地面积高达140,760平方英尺,漂亮的公寓配套设施
(3)80%项目绿化设施,20%住宅面积
(4)步行到加东公园地铁站/Katong Park MRT(待开通)
(5)户型真是绝了,采用一横到底的横厅设计,户型实用高效
(6)通过高速ECP,PIE,KPE,TPE前往全岛各地
(7)车程到CBD中央商务区、滨海湾金沙
(8)步行到加东公园地铁站/Katong Park MRT
(9) 新加坡著名发展商BukitSembawang
(10) 周围学校林立,光华小学、丹戎加东小学、加拿大国际学校、伊顿幼儿园等
项目介绍:
地处我们国人和新加坡富人喜欢居住地东海岸,传统富人别墅住宅区,低密度住宅区,环境非常清幽,属于第15邮区,只需步行到待开通的地铁站, 项目由多次获奖的新加坡发展商Bukit Sembawang开发,占地140,758平方米,属于偏大型地块,由4栋20层建筑组成,户型从1卧室到4卧室供选择,总共298个单位。
在市场上很少见到,80%的土地用来绿化和公寓配套设施,20%用来建房子,很多休闲设施,自从2019

住户可在顶楼的无边际泳池,观赏美景!空中游泳池面对无敌的风景位于市区附近,东海岸及国家体育场也近在咫尺,这是您梦寐以求的地点!有一套海边的私人公寓是很多人梦寐以求的目标,东海岸属于传统富人区,也是很多人向往的居住地点。






交通便利:
以前东海岸一直是没有地铁线的,预计2024年东海岸地铁线开通,距离加东公园(KatongPark MRT)只有260米,步行只需,到中央商业区和滨海湾,4站地铁到达滨海湾地铁站,10站地铁到达乌节路地铁站,新地铁线使得东海岸成为未来几年最值得关注的房产区域。
去中央商业区通过ECP高速只需车程,去乌节路约车程,如果您想来一趟说走就走的出国(现在是一种奢侈),可以车程直达樟宜机场。
户型点评:
每栋楼只有4个单位,真正做到每个单位都是明厨明卫,连1房/2房都是明厨明卫(市场上很少见的),连1房都配横厅拥有的横厅设计,
一心横到底,哈哈,真正做到南北朝向、明厨明卫,3房和4房私人电梯直接入户,发展商聘请的设计师在户型这块拿捏得妥妥,有带阳台和不带阳台双选择。
1卧室,45平方米,居然还是横厅设计

两卧室,下图为58平方米,没阳台,极好控制总价

两卧室,下图为66平方米,带阳台

两卧室,下图为70平方米,没阳台,可以控制好总价,同时也有带阳台2房选择

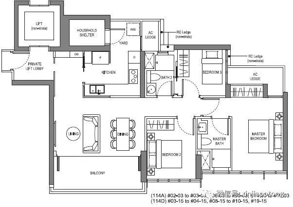
三卧室,104平方米,横厅设计,居然有私人电梯入户

三卧室优质款,面积117平方米,连次卧都超过10平方米,私人电梯入户

3卧室豪华款,121平方米,大客厅配带阳台,私人电梯入户

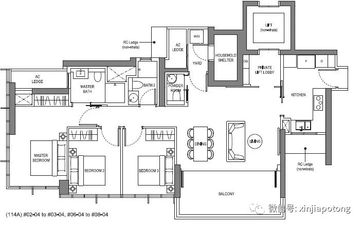
四卧室豪华款,155平方米,客厅长达6米,私人电梯入户,干湿双厨房


| 交易费用 | 贷款费用 | |||
| 印花税 | 外国人20% ,当地3% | 首付 | 30%以上 | |
| 律师费 | 2000-3000新币 | 贷款费用 | 根据实际情况而定 | |
| 转让费用 | 持有费用 | |||
| 所得税 | 所得税 其中第一年税率:16% 第二年:12% 第三年:8% 购买超过3年免征 |
物业费 | 一般100-300新币 | |
| 地税 | 年租金4%或10%(非自住) | |||
| 出租税 | 2万新币/年起征 | |||