美国奥兰多近中佛州大学独立屋

美国佛罗里达州奥兰多 房源编号:28768
美国奥兰多近中佛州大学独立屋,编号28768
美国奥兰多近中佛州大学独立屋,编号28768 美国奥兰多近中佛州大学独立屋,编号28768 美国奥兰多近中佛州大学独立屋,编号28768
价格:

约¥194

物业类型 别墅
物业状态 新建
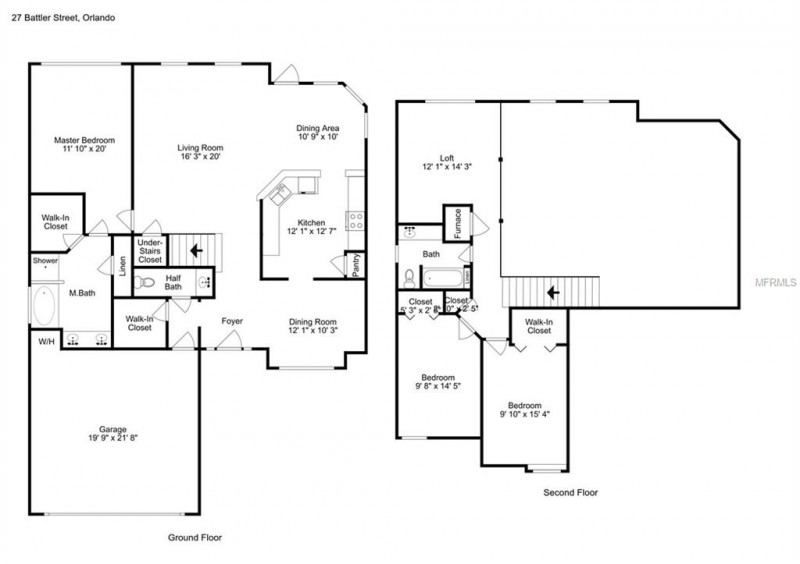
建筑面积 186平方米
占地面积 230平方米
卧室数量 3
房龄 1996
朝向 西

立即在线咨询

此房已有合约。
5/26新上市的这座独立屋位于奥兰多的沃特福德湖,有3间卧室2个半卫生间。室内拥有开放式概念的高耸天花板,
全新地毯和新灯条,厨房配有新的3件套不锈钢电器,重新铺设的橱柜,和早餐吧。
根据ORRA/奥兰多地产协会2018报道这里的房屋销售中位数为$29.7万美元,Zillow上2卧室的房屋租金中位数
为$1500美元。

地理位置:
出小区拐角便可轻易上408高速路;距4英里的UCF-中佛州州大学目前6万8千学生,提供俩千个学位;西门子电
器公司及Lockheed Martin Corporation-美国全球航空航天,国防,安全和先进技术公司都在2,3英里内。
 
Waterford Lake-沃特福德湖区介绍:
沃特福德湖是一个由25个分区组成的契约限制社区,拥有超过3,100所房屋,位于奥兰治县东部840英亩的土地上,靠近50号国道和阿拉法雅步道,距离佛罗里达中央大学不到4英里。实际上,沃特福德湖区是一个新兴区域的一部分,该区域还包括许多住房开发项目。沃特福德湖不是一个城市,但由于其自身的地位和邻近的增长,它似乎越来越接近这个范围。沃特福德湖镇中心是一个庞大的露天购物中心,吸引着来自远近的购物者,在景观,喷泉和湖泊中拥有广泛的零售商和餐馆。Victoria Secrets,Levis,California Pizza Kitchen,Red Lobster...
 
 
 
 
 
 
 
 

相关配套

 该地区服务有:

娱乐:所有沃特福德湖居民都有权使用娱乐设施,包括社区中心的游泳池,步行道和球场,以及附近的安德希尔湖路上的三个较小的游乐场。步行道覆盖3,800英尺。

绿地:沃特福德湖的住宅建在54个保留池附近。奥兰治县保持了11个,而社区协会保持了22个,而且这个分区共同观察了另外21个池塘。


地图及周边

项目联系人

李汉英
020-82081382

咨询联系人

美国购房相关税费

交易费用   贷款费用
 律师费  $500 - $3000    银行手续费  $700 - $900
 登记费  $100    贷款发放费  贷款额的0.5%-2%
 交易税  0 - 2%    按揭经纪费  贷款额的1%
 房检费  $300 - $500    贷款登记税  各地不同(纽约市为2%,加州没有)
 产权调查费  $200 - $300    首付款  外国人(无美国绿卡)通常要在40%-50%
 房屋估价费  $200 - $500      
 产权保险费  0.3% - 0.5%   持有费用
 公证费  $300 - $400    房地产税  各州不同,一般为房产估价的1%-3%
 勘查费  $50 - $600    房屋保险  一般住宅每月$100左右
 房管协会费  3个月物业费    出租管理费  一般8%-10%房租加一个月租金
 地税调整  1-6个月的房地产税    房产增值税  净利润*15%


注:具体情况可与中介咨询。

李汉英

020-82081382
020-82081382
christine9988@gmail.com

支持语言: 普通话 英语

所在公司


国泰地产公司

周边推荐房源

关闭

给李汉英发送邮件

姓名:
微信:
电话:
信息:

关闭

给李汉英发送邮件

姓名:
微信:
电话:
信息:
12小时在线QQ客服
周一至周日 9:00-21:00

广告联系

邮箱:glofang@glofang.com