本公司代理数千套墨尔本房源,豪宅、公寓、Townhouse、房地套餐应有尽有!欢迎点击“只看该作者”,查看我们的更多房源

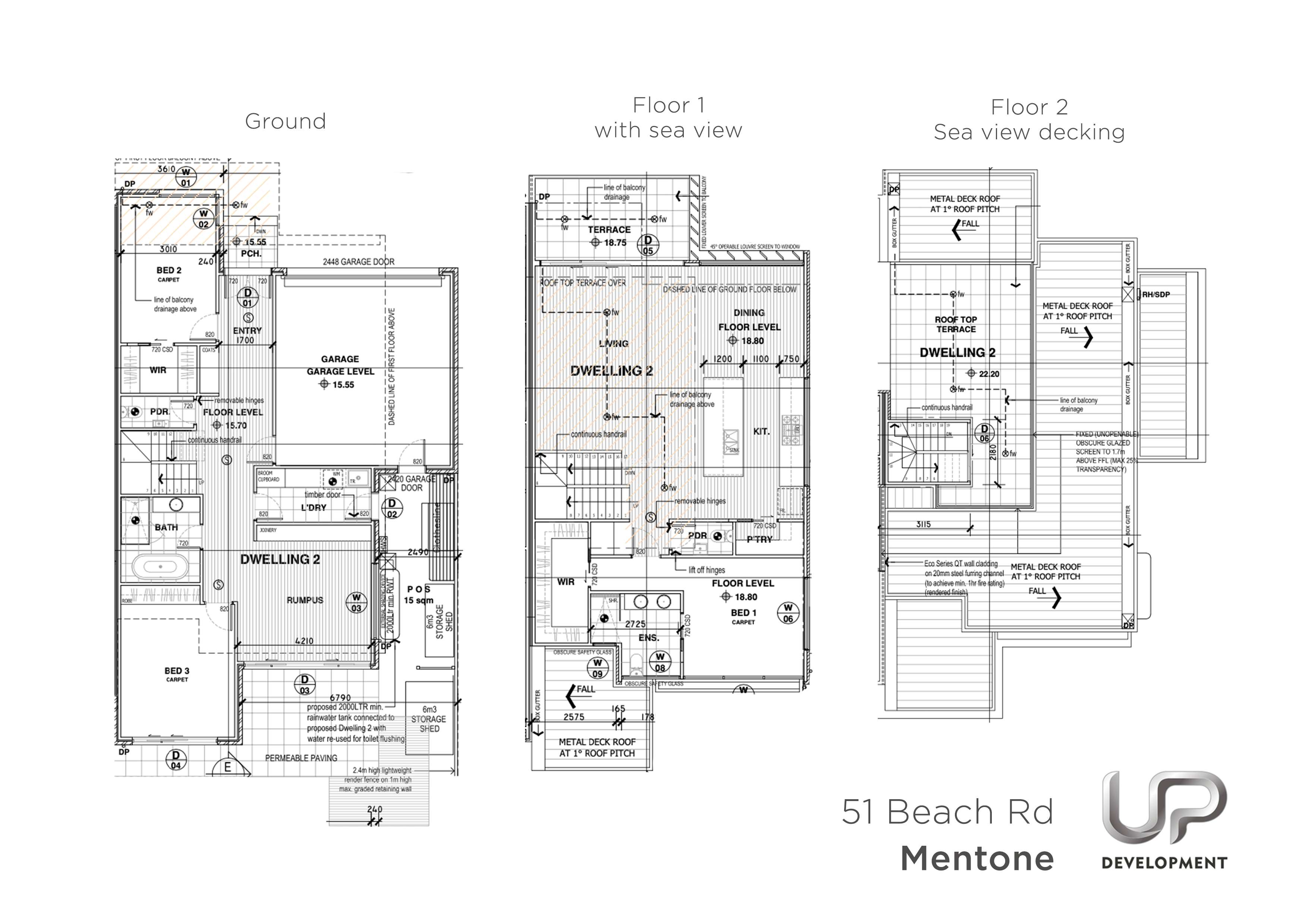
本项目位于墨尔本南郊滨海度假区Mentone,距离海湾几步之遥!区域内有众多高端设施,包括Southland购物中心、餐厅、咖啡馆、海滩、码头及多个知名游艇俱乐部,并临近墨尔本首屈一指的两所私校 Mentone Girls Grammar 和 Mentone Grammar。该项目由三套高端联排别墅组成,拥有360度无敌海景景观,预计2021年2月21日交付使用。



房产特点:
- 无敌海景
- 奢华内饰+全套米勒电器
- 壁炉+酒柜
- 双车库
- 安全车库门
- 两个共享访客车位

顶级私校
Mentone Girls Grammar School (Better Education Rating 2018) (98)
Mentone Grammar School (95)
Sandringham College (89)
Mentone Primary School (89)
| 持有费用 | 交易费用 | |||
| 物业费 | 约0-2000澳元/年 | 物业印花税 | 各州税率不同,一般3%-4.5% | |
| 市政税 | 约800-2000澳元/年 | 律师费/过户费 | 约1000-1500澳元起 | |
| 保险费 | 约300-700澳元/年 | 转让费用 | ||
| 水费 | 约150-200澳元/季度 | 中介费用 | 约为1-2.5% | |
| 中介管理费 | 约为1-2.5% | |||