
数据显示,近几年来已有17所英国学校被中国买家收购,2020年便有3起收购,预计这一数字还会不断增长。

而英国《每日电讯报》为此专门发布了一篇新闻:前哈罗(Harrow)负责人认为中国投资者投资英国私立学校将使英国教育更加领先。

英式教育历来颇受世界瞩目,英国的许多私立学校凭借其精英的教育模式和傲人的教学成绩,不仅成为许多中国家长推崇和追捧的对象,也是中国人送子女出国留学的重要参考。

英国《每日邮报》报道,新冠疫情下,多所私立寄宿学校面临资金短缺危机,主要因为学生在家上网课,学校入学率下降,学费收入大大减少。
而疫情期间,一方面私立学校需要继续提供高质量的网课,且按合同支付教师工资和校园租金;另一方面,私校因为其独立的性质,无法拿到政府的疫情援助,因此一旦私校遇到资金困难,就得考虑出售。
在此情况下,精明的中国商人们敏锐地察觉到了商机。

在关英国的精英教育相信一些家长们一定略有耳闻,一些人将孩子送到英国学习,希望孩子能在精英教育的环境下学到优美的英伦腔,学到绅士风度。

精英教育确实有值得称道的地方,包括不少精英父母有条件的话都会这么选择,比如霍启刚、王思聪都是温彻斯特公学的学生,在这里他们度过了5年的学习生活。

英国“公学”并不意味这些学校是公立学校,在英国“公学”指的是顶尖的私立学校,包括温彻斯特、伊顿、哈罗、西敏等都是享誉世界的顶尖初中级教育学校。

英国的精英教育深入人心,在这些“公学”中汇集了英国最精英的师资力量,大量的精英家庭都希望将孩子送进这些“公学”,比如英国的哈利王子以及威廉王子都在伊顿公学中接受过教育。

据调查显示,英国的私立公学只接受7%左右的学生,要进这样的学习不仅要有经济支持,入学前的面试也不好过。当然高门槛换来的好成材率也是显而易见的,在英国,这7%的的学生占据了牛津剑桥两大高校的半数名额。

而这些孩子不仅仅有优异的成绩,更多的是学会规则、团队合作以及责任感。在私校中体育是兴趣培养,以此形成团队和交往的圈子,也是交友的一种方式。

除此之外,通过体育运动,孩子们还能学到让步和牺牲,简单来说就是奉献精神。以形成基数的规模教育来培养下一代,以此一群善于协作,富有爱心和社会责任感的社会精英才能持续推动社会发展,拥有改变国家的力量。

以下是英国的教学体系及申请英国学校的时间,供大家参考。



英国私立学校对亚洲市场的依赖一直很大,为了吸引国际学生,学校甚至走出来,积极在亚洲扩展业务,包括兴办分校、国际学校等,就连大名鼎鼎哈罗公学、威灵顿公学等名校,都在亚洲办学,因为亚洲地区对于高品质英语教育的需求巨大。

然而,富裕阶层还是不满足于本国内的国际学校,他们希望更早地让子女接受全英语环境教育,让子女在鼓励创造性的教育体制中成长。

相关数据显示,中国是英国私立学校中最大的外国学生群体,占国际学生总数的14%。尤其是近年来中美关系紧张,美国社会治安不好等因素成为中国家庭的困扰,时不时就有华人被抢被杀的报道见诸于媒体,导致中国大批大中小留学生从美国转往英国。

英国高等教育统计局数据显示,2018/2019学年,有485,645名国际学生在英国攻读学位,同比2017/2018学年增长5.9%。中国内地学生赴英国留学总人数创下历史新高,超过12.03万人。
另一组HESA的数据显示,近三年中国内地学生就读授课式硕士的人数为45,205人、52,790人与60,775人,呈持续增长态势。

最近在美国,一项名为“签证安全法案”的提案摆在拜登的面前,美国一些议员要求恢复2014年之前的美国对华签证政策,给予中国公民申请人一年期多次入境签证,即,取消中国赴美10年多次往返签证。

一旦这一政策实施,不仅是中国境内的公民前往美国变得不方便,对于在美华人,前往中国的签证也会因对等签证条约而面临取消。
反观英国,为了吸引人才,英国实行最新PSW签证,允许在英国留学的本科及硕士毕业生在英国工作2年,这两年内不限制工作时间和工作类型,且对于申请签证的人数不设上限。另外还推出科技签证,目标就是吸引国际人才,鼓励更多海外人士来英国发展,促进脱欧后英国各方面产业的腾飞。

近几年来中国大陆已成为英国私校的主要海外生源,每年都以超过10%的比例增长,预计两位数的增长还会持续很多年,嗅觉灵敏的中国资本自然看到了这个市场的光明前景,争相提前布局。
那么作为中国家长,也要提前为孩子做好准备,把握住教育资源的同时,也要考虑孩子的居住环境。
今天蓝莎君为大家带来的项目就位于伦敦“大学线”上的巴尼特区,妥妥的优质学区房!

项目坐落于伦敦西北4区,是伦敦最大型的居住小区之一。所在的巴尼特区,是伦敦人口数量最大的行政区,也是预计伦敦人口增长最快的行政区之一。

该区于15年被政府列为2015-2025年新房建设重点区域 ,在政府45亿英镑的总投资支持下,改造计划将为该区域带来27000份新工作、三个新学校和新的轨道交通。

整个区域空间开放,治安良好,交通便利、购物方便。巴尼特区,房价增长充满潜力,未来几年内房价水平势必再上几个台阶。

黑线是伦敦仅有的一条既是周末24小时运营,又同时经过汉普斯泰德、国王十字车站、金融城、牛津街、和滑铁卢这伦敦五大CBD的地铁线。

同时由于黑线经过多个知名高校,伦敦大学学院(UCL)、卡斯商学院(Cass)、伦敦政治经济学院(LSE)等通勤站,因此黑线也被伦敦人称为大学线。
而项目距离黑线地铁站——科林代尔站,步行仅8分钟。它使项目内住户可以半小时直达伦敦所有重要商圈以及欧洲顶级名校。

除此之外,项目出发5分钟到达布伦特十字购物中心,它是欧洲最大的购物中心之一;20分钟地铁到达伦敦大学学院UCL;21分钟地铁到达国王十字地铁站,这里也是欧洲之星的始发站;27分钟到达中国城莱斯特广场;30分钟地铁就能抵达伦敦金融城。

从项目出发,地铁坐1站就能直达欧洲最大的购物中心布兰特十字。

布兰特十字被称为“伦敦下一个Westfield”,是全英国单位面积销售额最高的购物中心。

目前,在政府5.5亿英镑投资支持下,布兰特十字正在进行大扩建。规模上将超过西伦敦的Westfield,成为全英国最先进和规模最大的购物中心,每年预计将吸引超过1500万人次。

项目所在的巴尼特区,是英国第五大学区,拥有30所被评为‘卓越’的小学,总共有88所各类优质中小学校。距离英国著名的哈罗公学,仅仅只有20分钟车程。

同时,博福特公园所邻学区内,包含了伦敦A-level考试排名第一和第二的公立高中,而项目门口即是有两万三千名学生的密德萨斯大学,另外还有伦敦大学学院、伦敦政经、伦敦艺术学院等知名高校环绕。这就意味着,入住彼福公园,就能享受到英国最顶尖的初高级教育。


从科林代尔站乘坐地铁可以前往充满现代时尚感的汉普斯特德,感受轻松的乡村氛围、精致的商铺、餐馆和咖啡店,或者探索国际大都会一般的卡姆登市场。

住在彼福公园居民还可以步行去伦敦新开的新亚洲美食广场Bang Bang Oriental大快朵颐。该广场拥有33个美食摊位,可同时容纳450名食客就餐。

除此之外小区内设咖啡馆、餐馆、便利店、水疗中心(包含游泳池和温泉)以及健身中心,为居民提供最便利的居住环境。


此外还有24小时门卫和地下停车库;小区一侧临近警察局,为居民出行提供安全保障。
内饰欣赏




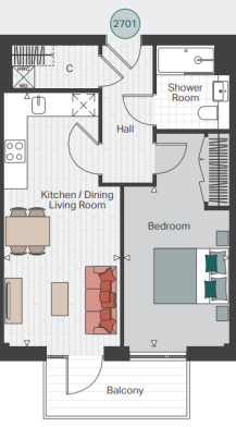
户型推荐
户型:一居室
面积:51平方米
售价:49.5万英镑起

留英人数持续上涨,学区房也变得越来越抢手,还在等什么,快点联系蓝莎君,获取你的专属学区房~